平整機軋輥在線擦拭除塵系統
1. 平整機軋輥在線拋光應用環境
隨著不銹鋼帶或普碳雙光面帶產品的要求提高,用戶對帶材表面(光潔度、有無劃痕)等重要指標也越來越高。我們知道:帶材在平整過程中由于前面生產流程或多或少表面會被污染,那么就帶來在平整過程中對軋輥的污染。這樣產生兩個后果:軋輥使用周期減少、帶材表面污染。這樣生產效率和成品率大大降低。鑒此,軋輥在線擦拭設備和除塵設備解決以上平整中的問題。

液壓缸帶動擦拭頭做直線往復運動,氣缸壓緊的擦拭紗紙與輥面產生一定摩擦力,垂直作用于軋輥上。這樣便可以達到擦拭軋輥的目的。拋下的雜塵通過除塵系統吸走。
該系統由上下擦拭裝置(擦拭頭、粉塵倉、氣缸壓緊裝置、橫移裝置等、氣動升縮裝置)和擦拭控制箱兩部分組成。擦拭控制箱內包含:Siemens PLC、24V5A電源、熔斷器、空開及接線端子;控制箱操作面板上由上輥自動/停止/手動、下輥自動/停止/手動、系統正常指示燈、紗布夾緊/放松、壓下/抬起、前進/后退等按鈕和指示燈組成。
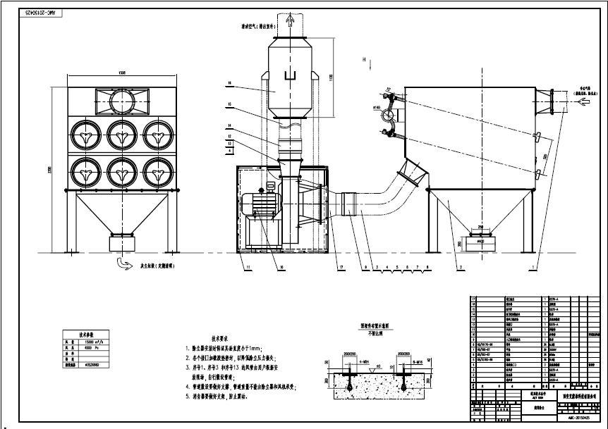
4. 除塵系統組成
除塵系統由除塵箱體、風機和除塵控制三部分組成。采用脈沖除塵法實現,環保整潔。


中文版
English
官方微信













阿里巴巴店鋪